2016 GMM ZEDA 1300 CN2 (M)

2016 GMM ZEDA 1300 CN2 (M)
Standort:Hamburg, Deutschland
Beschreibung
CNC Brückensäge / Bearbeitungszentrum
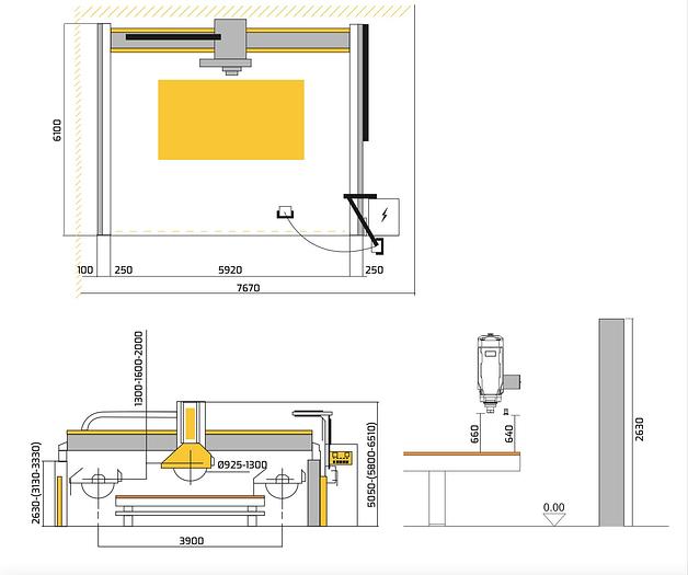
Schnitthub des Messers (x-Achse) mm 3900
Maximale Übersetzung der Brücke (y-Achse) mm 3650
Maximaler vertikaler Verfahrweg der Klinge (Z-Achse) mm 1300
Max. Neigekopfwinkel (R-Achse) ° -15°÷+105°
Maximale Rotation (W-Achse) ° 0°÷370°
Maximaler vertikaler Blattdurchmesser mm 1000
Lochdurchmesser mm 60
Durchmesser des Flansches mm 250
Maximale Schnitttiefe mm 335-520*
Tischabmessungen mm 2000x3500
Leistung des Motors kW 28,5 (S 6)
Spindeldrehzahl U/min 400÷6000
Schnittgeschwindigkeit (x-Achse) m/min 0÷35
Übersetzungsgeschwindigkeit der Brücke (y-Achse) m/min 0÷35
Vertikale Bewegungsgeschwindigkeit (z-Achse) m/min 0÷7,5
Zeit zum Drehen des Kopfes um 90° (w-Achse) Sek. 1,5
Wasserverbrauch bei 3 bar l/min 50
Luftverbrauch bei 6 bar l/min 5
Gesamtgewicht der Maschine kg 7500
Standort USA
Spezifikationen
| Hersteller | GMM |
| Modell | ZEDA 1300 CN2 (M) |
| Jahr | 2016 |
| Zustand | Gebraucht |



